Apartments In Cochin

4 & 3 BHK apartments In Near Holiday Inn, Cochin.

SFS Haveli

Near Holiday Inn, Cochin

K-RERA/PRJ/ERN/070/2021

SFS Haveli - 4 & 3 BHK Premium Apartments Near Holiday Inn, Cochin

Let's travel back in time to era when homes were large and lavishly designed. To a time when the finest homes were huge, its living spaces were vast and its architecture was inspired by tradition and culture. The apartments at SFS Haveli are inspired by this concept and offers large homes with spacious living areas aimed to enhance quality of life in an urban setting.

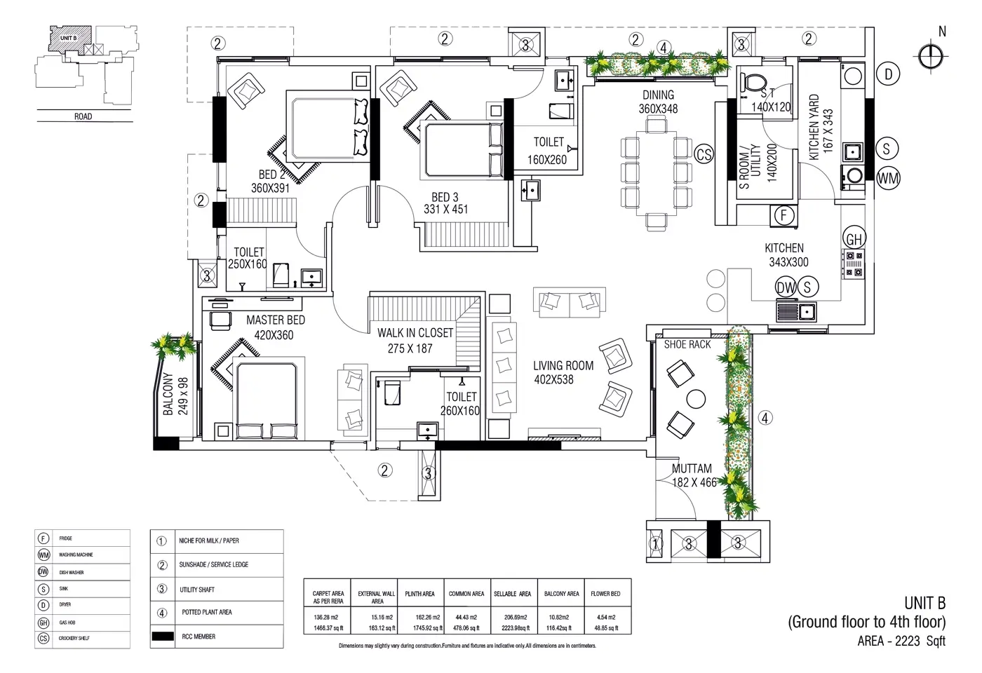
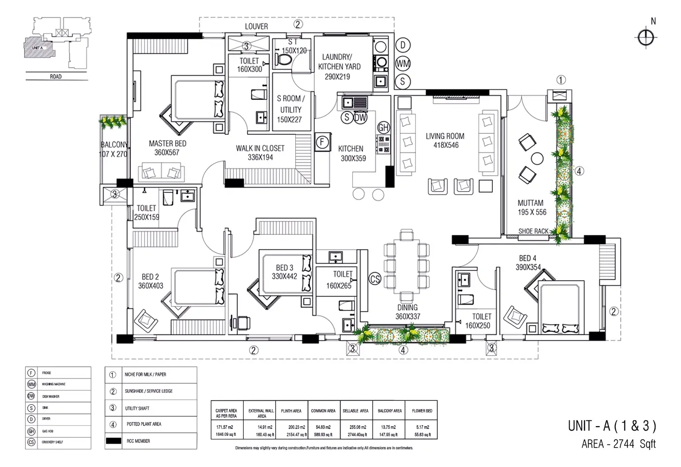
The "muttam" or courtyard of every residence at SFS Haveli is an important design feature of traditional mansions that lets residents enjoy a very private lifestyle while residing in a good community. It is not just an added feature but a prelude to the amazing lifestyle that one can experience only at SFS Haveli.

Project Overview

K-RERA
K-RERA/PRJ/ERN/070/2021
https://rera.kerala.gov.in/
Location
Near Holiday Inn, Cochin
Permit Number
KRP2 101/21
Apartment Type
4 & 3 BHK
Status
Ready to Move In
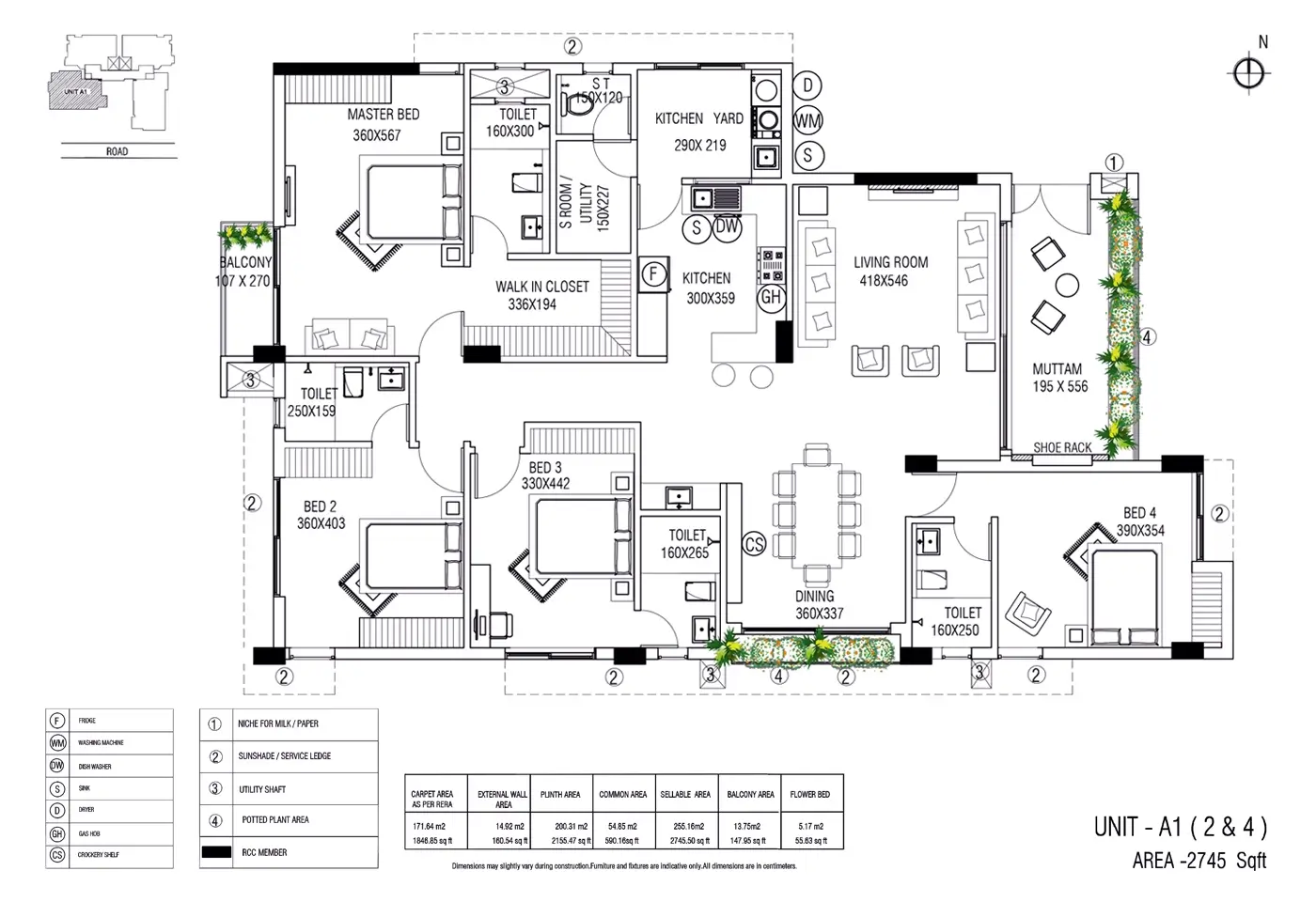
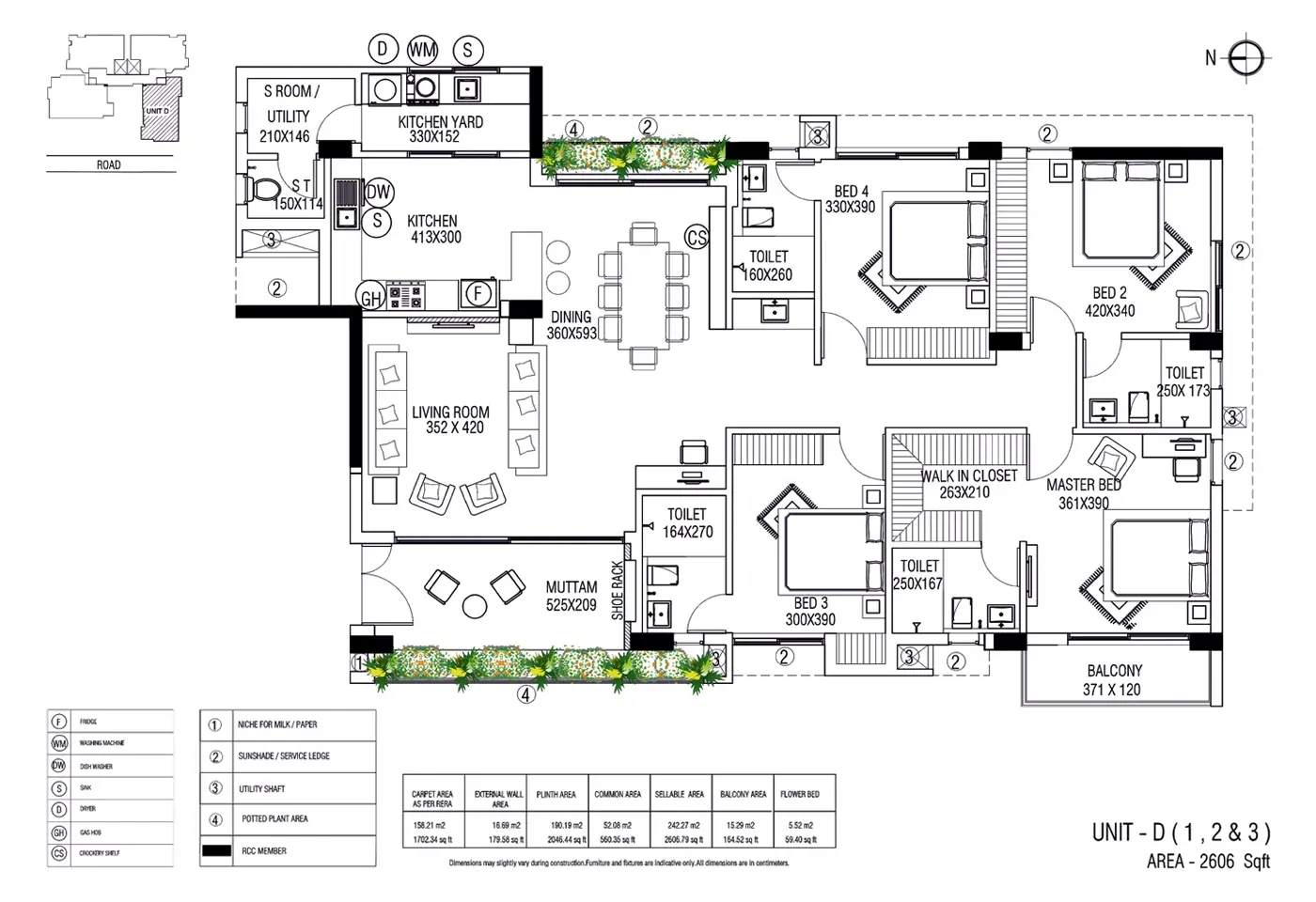
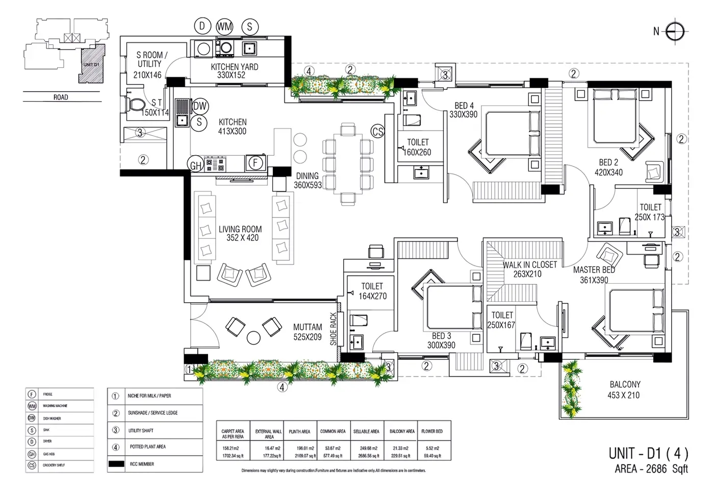
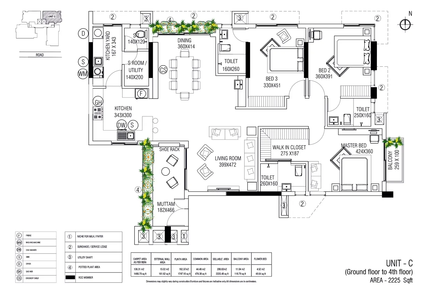
Area Range
2,745 - 2,223 Sq.Ft

SFS Haveli Project Video

4 & 3 BHK Spacious Boutique Apartments near Holiday Inn, Cochin

Post An Enquiry

Common Amenities

Experience unrivaled luxury living with extraordinary amenities in our exquisite apartment project of distinction!

Building Specifications

Exceptional quality and architectural excellence!

Apartments for Sale
Structure
RCC framed structure with masonry wall partitions. The structure surface including masonry walls shall be cement plastered / exposed concrete finish / gypsum plastered / finished with coarse putty as per design. Walls in common areas like Gym, Recreation hall will be dry wall partition.
Premium Apartments
Reticulated Gas Supply
Reticulated piped gas with leak detection system with shut-off valve & individual consumption gas meter subject to GOVT norms. Gas supply system through centralized gas bank in premises or city gas distribution ( CGD ) of Adani / IOC shall be at extra cost.
Top Builders
Internal & External Masonry
Shall be cement concrete hollow blocks / cement concrete solid blocks / Autoclaved Aerated Concrete ( AAC ) light weight blocks.
Best Builder
Doors & Windows
Entrance door: Engineered door frame and shutter.
Internal doors: Engineered door frame with laminate flush door / moulded skin door.
Toilets doors: Engineered door frame with flush door with water resistant coating / ABS doors / UPVC doors.
Windows: Made of powder coated aluminium / UPVC sections UPVC with combination of fixed and openable / sliding window panels with glass.
Balcony door: Made of powder coated aluminium / UPVC sections with combination of fixed and openable / sliding window panels with glass.
SFS Homes
Plumbing & Sanitary
EWC/ WHB – Water Closets: All bathroom with western style wall hung EWC.
Water cistern for EWC: Concealed water cistern - dual flush with wall plate.
Wash Basins: All bathrooms with Wash Basins above / below counter / bowl type / wall mounted.
Maids Toilet: Floor mounted two piece EWC. Sanitary fixtures expect for maid's toilet shall be of make Roca / Jaquar / Equivalent.
Taps: Chromium Plated bathroom faucets. All faucets shall be of make Roca / Jaquar / Equivalent.
Hot and Cold water provision: Hot and Cold Water tap provision shall be provided with mixing facility for all bath mixer taps.
...
Grills & Railings
Window safety grill: Mild Steel grill or handrail at sunshade.
Balcony railing: Combination of railing of mild steel and masonry
...
Water Supply
Water supply through underground sump tank and overhead tank of sufficient storage capacity. Each apartment is provided with plumbing system to supply two qualities of water, namely domestic quality and flush quality water. individual water metering for domestic water connection for each flat at extra cost.
...
Car Parking
Car Park at extra cost. Each apartment has pre-designated car park / parks. Car park / parks is a must buy and non-optional. Car park allotment for individual apartments shall be as per the allotment chart provided by the builder.
...
Flooring
General Floor: Vitrified / Ceramic Tiles.
Balcony & Muttam: Vitrified / Ceramic Tiles.
Toilet: Vitrified / Ceramic Tiles
...
Walls & Ceiling
External walls: Combination of exterior paint / texture paint / cladding with tile / cladding with exposed bricks as per design.
Internal walls: 2 coats of interior paint.
Ceiling: Interior paint for all rooms. False ceiling for toilets.
Wall for toilets: Vitrified / Ceramic tiles.
Wall finish for kitchen and kitchen yard: Interior paint on plastered walls. Kitchen and work area shall not be provided with any RCC slab / steel support frames, counter top, steel sink to enable customized and easy fit out of kitchen cabinets.
...
Electrical
General: Concealed wiring with PVC insulated copper cables, light, fan, 6/16 Ampere power plug points as per attached schedule.
Switches: Modular Switches of make LEGRAND / SCHNEIDER / CRABTREE / EQUIVALENT.
Generator back up: Power backup provided with diesel fueled power generator of sufficient capacity, subject to maximum limit of 1500W per apartment.
Air Conditioning Provision: Provision to install split type air–conditioner shall be provided for living room, dining room and all bedrooms with energized power point. Outdoor unit of the split type air–conditioner to be kept in approved and designated location by the builder.
...
Fire Fighting
Fire Fighting arrangements as per approved plan.
...
Security System
Access control entry to lobby and from car parking areas.

Location Map

Project Status

Year of Completion: 2023
Download Project Status Report

Other Projects In Cochin

2, 3 & 4 BHK apartments In Kadavanthara and Thrikkakara.

Cochin - Ongoing
SFS Constellation
Near CSEZ Metro Station Kakkanad, Cochin
Area Range
2,231 - 1,710 Sq.Ft
Apartment Type
3 BHK
K-RERA
K-RERA/PRJ/ERN/020/2024
Cochin - Ready to move in
SFS Bellagio
Kadavanthara - Vyttila, Cochin
Area Range
3,385 - 2,890 Sq.Ft
Apartment Type
4 BHK
K-RERA
K-RERA/PRJ/ERN/214/2022
Cochin - Ready to Move In
SFS Highland Park
Thrikkakara, Cochin
Area Range
2,854 - 1,210 Sq.Ft
Apartment Type
4, 3 & 2 BHK
K-RERA
K-RERA/PRJ/ERN/050/2021

Newsletter Signup

Get Exclusive Updates on Our Projects and Gain Early Access to Our New Launch Projects.